91 Springboard - Koramangala 8th Block

91 Springboard - Koramangala 8th Block

91 Springboard - Koramangala 8th Block

by 91 Springboard Business Hub Pvt. Ltd.
Project Type : Business Center & Co-working Space
Address : Padmavathi Complex, 80 Feet Rd, Koramangala 8th Block, Koramangala, Bangalore, Karnataka 560030, India

Overview

  • Total Seats600
  • Occupancy CertificateTo be Confirmed
  • Fire NOCAvailable

About Project

91 Springboard - Koramangala 8th Block is a co-working space covering 25,000 sq. ft. Located in Koramangala, it comes with a seating capacity of 600 seats. It comes fully-equipped with bright open workspaces, comfy casual areas, a large terrace event space/rooftop café and differently themed meeting rooms. The centre is surrounded by restaurants, retail outlets and IT Companies. The current tenants are Hashout Software Technologies, Social Hardware International, Enterprise System Solutions  (ESSPL), Tookitaki Technologies, Taskoid Solutions (HICM Institute), Infratab Bangalore and Channelplay. 

Available Units

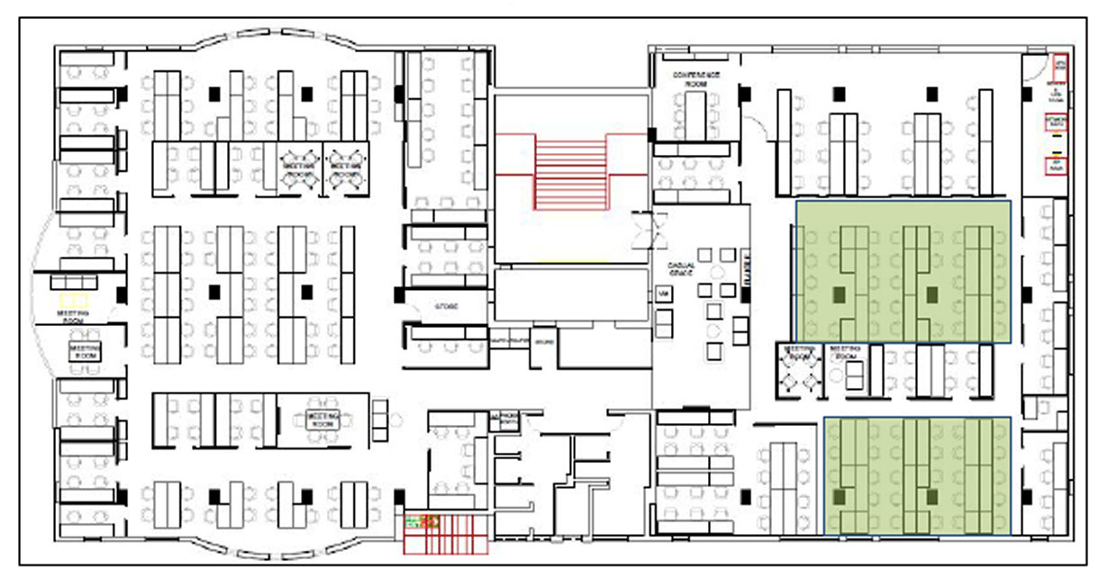
Floor image for 91 Springboard - Koramangala 8th Block
Floor image for 91 Springboard - Koramangala 8th Block
Seats
70 Seats
Floor Offered
Level 2
Interior
Pre Furnished
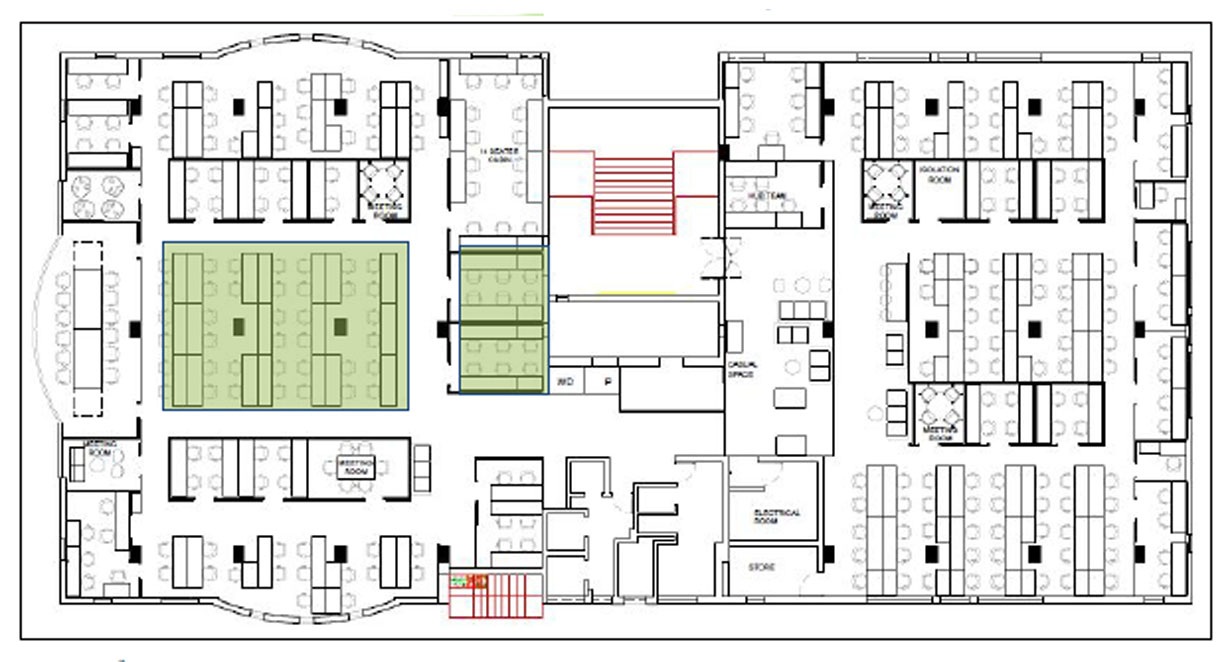
Floor image for 91 Springboard - Koramangala 8th Block
Floor image for 91 Springboard - Koramangala 8th Block
Seats
54 Seats
Floor Offered
Level 3
Interior
Pre Furnished

Tenants

lock

To Unlock the view, Please sign up with your business details

Type
Area
Sq. Ft.
Floor Offered
NA
Interior
NA
Status
Type
Area
Sq. Ft.
Floor Offered
NA
Interior
NA
Status
Type
Area
Sq. Ft.
Floor Offered
NA
Interior
NA
Status
Type
Area
Sq. Ft.
Floor Offered
NA
Interior
NA
Status
Type
Area
Sq. Ft.
Floor Offered
NA
Interior
NA
Status
Type
Area
Sq. Ft.
Floor Offered
NA
Interior
NA
Status
Type
Area
Sq. Ft.
Floor Offered
NA
Interior
NA
Status

Amenities

  • 24x7 Security 24x7 Security
  • CCTV CCTV
  • Lift Lift
  • Visitors Parking Visitors Parking
  • Power Power
  • Power Backup Power Backup

Statutory / Complaince Records

lock

To Unlock the view, Please Login with your business
email account.Click here to Login

Have any property to Sell / Rent ?

Let our advisors help you in Selling / Renting your property.

Sell / Post Free Ad

Location Map

Similar Projects

  • IndiQube - Lexington
    Shortlist
    Price on Request
    IndiQube - Lexington
    Koramangala
  • TableSpace - Vaswani Augusta
    Shortlist
    Price on Request
    TableSpace - Vaswani Augusta
    Domlur
  • TableSpace - Bren Optimus
    Shortlist
    Price on Request
    TableSpace - Bren Optimus
    Koramangala
  • Awfis - Prestige Blue Chip (Koramangala)
    Shortlist
    Price on Request
    Awfis - Prestige Blue Chip (Koramangala)
    Koramangala
  • WeWork - Prestige Cube
    Shortlist
    Price on Request
    WeWork - Prestige Cube
    Koramangala
  • 315 Work Avenue - KRM1 (Salarpuria Tower 2)
    Shortlist
    Price on Request
    315 Work Avenue - KRM1 (Salarpuria Tower 2)
    Koramangala
  • 365 - Pinnacle (365 Shared Space)
    Shortlist
    Price on Request
    365 - Pinnacle (365 Shared Space)
    Koramangala
  • BHIVE - Premium Koramangala (GNS Tower)
    Shortlist
    Price on Request
    BHIVE - Premium Koramangala (GNS Tower)
    Koramangala
  • Incubex - Koramangala Thrive Hub
    Shortlist
    Price on Request
    Incubex - Koramangala Thrive Hub
    Koramangala
  • Spaces - Fairway
    Shortlist
    Price on Request
    Spaces - Fairway
    Domlur
  • 315 Work Avenue - KRM3
    Shortlist
    Price on Request
    315 Work Avenue - KRM3
    Koramangala
  • Zillion Biz Center - Koramangala
    Shortlist
    Price on Request
    Zillion Biz Center - Koramangala
    Koramangala
  • One Co.Work - SJR Junction
    Shortlist
    Price on Request
    One Co.Work - SJR Junction
    Koramangala
  • BizzHub Workspaces - Aspire (SJR Junction)
    Shortlist
    Price on Request
    BizzHub Workspaces - Aspire (SJR Junction)
    Koramangala
  • Obeya - Elan
    Shortlist
    Price on Request
    Obeya - Elan
    Koramangala
  • WeWork - Prestige Atlanta
    Shortlist
    Price on Request
    WeWork - Prestige Atlanta
    Koramangala
  • IndiQube - Amber
    Shortlist
    Price on Request
    IndiQube - Amber
    Domlur
  • WeWork - Embassy Quest
    Shortlist
    Price on Request
    WeWork - Embassy Quest
    Magrath Road
  • Novel Office - Koramangala (Novel Business Park)
    Shortlist
    Price on Request
    Novel Office - Koramangala (Novel Business Park)
    Adugodi
  • BHIVE - Koramangala 5th Block
    Shortlist
    Price on Request
    BHIVE - Koramangala 5th Block
    Koramangala
  • 315 Work Avenue - KRM2
    Shortlist
    Price on Request
    315 Work Avenue - KRM2
    Koramangala
  • The Executive Centre - Kaman Amaryllis
    Shortlist
    Price on Request
    The Executive Centre - Kaman Amaryllis
    Intermediate Ring Road - Inner Ring Road
  • BHIVE - HSR Sector 6 Service Road (Silk Board)
    Shortlist
    Price on Request
    BHIVE - HSR Sector 6 Service Road (Silk Board)
    HSR Layout
  • Workshaala - Xenon
    Shortlist
    Price on Request
    Workshaala - Xenon
    Koramangala
  • 315 Work Avenue - KRM4 (Salarpuria Ascent)
    Shortlist
    Price on Request
    315 Work Avenue - KRM4 (Salarpuria Ascent)
    Koramangala
  • Attic Space - Chanakya
    Shortlist
    Price on Request
    Attic Space - Chanakya
    Koramangala
  • Workshaala - Towers
    Shortlist
    Price on Request
    Workshaala - Towers
    Koramangala
  • Incubex - Koramangala (KRM4) Hub
    Shortlist
    Price on Request
    Incubex - Koramangala (KRM4) Hub
    Koramangala
  • BHIVE - Premium HSR Campus (AKR Tech Park - Block A)
    Shortlist
    Price on Request
    BHIVE - Premium HSR Campus (AKR Tech Park - Block A)
    Hosur Road
  • Workshaala - Athena
    Shortlist
    Price on Request
    Workshaala - Athena
    Koramangala

Recently viewed Projects

  • B Junction
    Shortlist
    Price on Request
    B Junction
    Pune, Maharashtra
  • Delta Tower
    Shortlist
    Price on Request
    Delta Tower
    Gurgaon, Haryana
  • Divyasree Orion - B5
    Shortlist
    Price on Request
    Divyasree Orion - B5
    Hyderabad, Telangana
  • Express Trade Tower 3
    Shortlist
    Price on Request
    Express Trade Tower 3
    Gurgaon, Haryana
  • GCP Business Centre
    Shortlist
    Price on Request
    GCP Business Centre
    Ahmedabad, Gujarat
  • iSprout - Shilpitha Tech Park
    Shortlist
    Price on Request
    iSprout - Shilpitha Tech Park
    Bangalore, Karnataka
  • JMD Regent Arcade
    Shortlist
    Price on Request
    JMD Regent Arcade
    Gurgaon, Haryana
  • Manyata Embassy Business Park - Alder (Block D1)
    Shortlist
    Price on Request
    Manyata Embassy Business Park - Alder (Block D1)
    Bangalore, Karnataka
  • Manyata Embassy Business Park - Pine (L5)
    Shortlist
    Price on Request
    Manyata Embassy Business Park - Pine (L5)
    Bangalore, Karnataka
  • Mindspace Airoli East - Building 5 & 6
    Shortlist
    Price on Request
    Mindspace Airoli East - Building 5 & 6
    Mumbai, Maharashtra
  • Salarpuria Sattva Knowledge Capital - Tower 1
    Shortlist
    Price on Request
    Salarpuria Sattva Knowledge Capital - Tower 1
    Hyderabad, Telangana
  • Simpliwork - MFAR Wilshire III (Pardhanani)
    Shortlist
    Price on Request
    Simpliwork - MFAR Wilshire III (Pardhanani)
    Bangalore, Karnataka
  • Surinder Jakhar Bhavan - IFFCO Tower A
    Shortlist
    Price on Request
    Surinder Jakhar Bhavan - IFFCO Tower A
    Gurgaon, Haryana
  • Temple Steps - Block A
    Shortlist
    Price on Request
    Temple Steps - Block A
    Chennai, Tamil Nadu
  • The Corenthum - Tower A
    Shortlist
    Price on Request
    The Corenthum - Tower A
    Noida, Uttar Pradesh
  • Vasant Square Mall
    Shortlist
    Price on Request
    Vasant Square Mall
    Delhi, Delhi
  • Vatika Atrium - Block B
    Shortlist
    Price on Request
    Vatika Atrium - Block B
    Gurgaon, Haryana
  • Vatika Business Park - Tower B (Block Two)
    Shortlist
    Price on Request
    Vatika Business Park - Tower B (Block Two)
    Gurgaon, Haryana

Post Your Requirement!

Give us a complete description of your requirement
We will match it with the best available choices on cityinfo.com

I Would Like to

  • Type of Property

  • Budget

  • Didn't find your Locality ?Click here

  • Please enter name~*Please enter Valid name
  • Please enter email~*Please enter a valid email
  • Please enter mobile number~*Please enter valid mobile number
Contact

Interested in 91 Springboard - Koramangala 8th Block?